Alternative Objekte
Ferienwohnung - 8 Personen - Vladimira Nazora - 21220 - Trogir
8 Personen
Objekt Nr.: 133-CSC801
- Schlafzimmer 4
- Badezimmer 2
- Wohnfläche 155 m²
- Grundstück 100 m²
- Haustiere Nicht erlaubt
- Kurzurlaub möglich Ja
- Entfernung Wasser 120 m
- Einkaufen 200 m
- Internet Ja
- Satelliten-/Kabel TV Ja
- Wasserblick Ja
- Klimaanlage Ja
- Waschmaschine Ja
- Geschirrspüler Ja
- Nichtraucher Ja
- Inklusive Verbrauch Ja
Beschreibung
Verbringen Sie in dieser geräumigen Ferienwohnung einen geselligen Strandurlaub mit Freunden oder der Familie.
Willkommen in dieser großzügigen und stilvoll eingerichteten Ferienwohnung, die Ihnen nur wenige Schritte vom Strand entfernt ein gemütliches und komfortables Zuhause bietet. Veranstalten Sie fröhliche Kochabende, plaudern Sie am einladenden Esstisch und kommen Sie für behagliche Filmabende auf der großzügigen Sofalandschaft zusammen.
Genießen Sie Ihren ersten Kaffee am Morgen auf dem Balkon und lassen Sie abends die mediterrane Atmosphäre bei einem Glas Wein auf sich wirken.
Unternehmen Sie einen Bootsausflug zu den idyllischen Inseln Drvenik Veli und Mali, erkunden Sie das UNESCO-Weltkulturerbe Trogir bei einem geführten Altstadtrundgang und lassen Sie sich von der romanischen Kathedrale des Heiligen Laurentius beeindrucken. Radeln Sie die Küstenstraße entlang nach Marina, machen Sie eine Kajaktour durch die Cetina-Schlucht bei Omiš oder unternehmen Sie eine Canyoning-Tour im Nationalpark Krka.
Ferienhaus
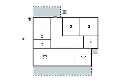
Schlafzimmer 18m2 (nr. 1) - 2 Schlafmöglichkeiten. (Doppelbett(en)).
Schlafzimmer 11m2 (nr. 2) - 2 Schlafmöglichkeiten. (Doppelbett(en)).
Schlafzimmer 9m2 (nr. 3) - 2 Schlafmöglichkeiten. (Doppelbett(en)).
Schlafzimmer 18m2 (nr. 4) - 2 Schlafmöglichkeiten. (Doppelbett(en)).
Wohnraum/Küche 60m2
Badezimmer 5m2 (nr. 1) - WC. Warmes und kaltes Wasser. Dusche
Badezimmer 5m2 (nr. 2) - WC. Warmes und kaltes Wasser. Dusche
Terrasse oder Ähnliches 20m2 - Überdachte Terrasse
Terrasse oder Ähnliches 12m2 - Überdachte Terrasse
Terrasse oder Ähnliches 4m2 - Balkon
Willkommen in dieser großzügigen und stilvoll eingerichteten Ferienwohnung, die Ihnen nur wenige Schritte vom Strand entfernt ein gemütliches und komfortables Zuhause bietet. Veranstalten Sie fröhliche Kochabende, plaudern Sie am einladenden Esstisch und kommen Sie für behagliche Filmabende auf der großzügigen Sofalandschaft zusammen.
Genießen Sie Ihren ersten Kaffee am Morgen auf dem Balkon und lassen Sie abends die mediterrane Atmosphäre bei einem Glas Wein auf sich wirken.
Unternehmen Sie einen Bootsausflug zu den idyllischen Inseln Drvenik Veli und Mali, erkunden Sie das UNESCO-Weltkulturerbe Trogir bei einem geführten Altstadtrundgang und lassen Sie sich von der romanischen Kathedrale des Heiligen Laurentius beeindrucken. Radeln Sie die Küstenstraße entlang nach Marina, machen Sie eine Kajaktour durch die Cetina-Schlucht bei Omiš oder unternehmen Sie eine Canyoning-Tour im Nationalpark Krka.
Ferienhaus
Schlafzimmer 18m2 (nr. 1) - 2 Schlafmöglichkeiten. (Doppelbett(en)).
Schlafzimmer 11m2 (nr. 2) - 2 Schlafmöglichkeiten. (Doppelbett(en)).
Schlafzimmer 9m2 (nr. 3) - 2 Schlafmöglichkeiten. (Doppelbett(en)).
Schlafzimmer 18m2 (nr. 4) - 2 Schlafmöglichkeiten. (Doppelbett(en)).
Wohnraum/Küche 60m2
Badezimmer 5m2 (nr. 1) - WC. Warmes und kaltes Wasser. Dusche
Badezimmer 5m2 (nr. 2) - WC. Warmes und kaltes Wasser. Dusche
Terrasse oder Ähnliches 20m2 - Überdachte Terrasse
Terrasse oder Ähnliches 12m2 - Überdachte Terrasse
Terrasse oder Ähnliches 4m2 - Balkon
Ausstattung
-
Badezimmer
-
TOILETTE. Heißes und kaltes Wasser
-
-
Diverse
-
Baujahr1986
-
Baumaterial: Porenbeton
-
Etage 2. Etage
-
Ferienwohnung155 m²
-
Haustiere Nr
-
Meerblick von der Terrasse
-
Parabol
-
Renoviert2024
-
Verbrauchskosten inkl.
-
Waschmaschine
-
Winterfest
-
-
Draußen
-
Gartenmöbel
-
Gemeinsamkeiten100 m²
-
Kostenloser Parkplatz auf dem Gelände3
-
Offenes Gelände
-
-
Drinnen
-
Klimaanlage5
-
Klimaanlage im ganzen Haus
-
-
Elektrogeräte
-
1 Fernseher
-
Bügeleisen
-
Haartrockner
-
Internet (drahtlos)
-
Smart TV
-
-
In der Nähe
-
Badeland500 m
-
Bootsverleih500 m
-
Die nächste Stadt1,5 km
-
Entfernung Einkauf200 m
-
Entfernung Flughafen SPU5 km
-
Nächster Nachbar10 m
-
Nächstes Restaurant200 m
-
Sek. zum nächsten Wasser/Bad120 m
-
-
Konzepte
-
Alles inklusive
-
Rauchfreies Haus
-
-
Küche
-
Abzugshaube
-
Backofen und Elektroplatten4 Kochfelder
-
Die Küche verfügt über Warmwasser
-
Gefriertruhe100 l
-
Kaffeemaschine
-
Kühlschrank
-
Mikrowelle
-
Spülmaschine
-
-
Notiz
-
Eigentümer wohnt auf dem Grundstück
-
Kurzurlaub
Zur Zeit werden keine Kurzulaube angeboten. Das bedeutet meistens, dass ein Kurzurlaub in der Hochsaison nicht möglich ist.
Preise und Kalender
Kalender
Dauer
Preis
Zeitraum
- Ankunft
- Abreise
- Dauer
- 1 Woche
Personen
Bis zu 8 Personen
Bitte beachten
Ankunftszeit wurde nicht ausgewählt.