Alternative Objekte
Ferienwohnung - 5 Personen - Erlenweg - 89353 - Glött
5 Personen
Objekt Nr.: 530-185211
- Schlafzimmer 2
- Haustiere Nicht erlaubt
- Kurzurlaub möglich Ja
- Internet Ja
- Geschirrspüler Ja
- Nichtraucher Ja
Beschreibung
Gästehaus Gold, Ferienwohnung Erdgeschoss (80qm) mit Geschirrspüler
Zwei komfortabel ausgestatteten Ferienwohnungen mit Geschirrspüler und E-Geräten, Wohn-Esszimmer mit Sat-TV, DVD, CD/Radio und Spielen, 2-3 Schlafzimmern, Kinderbett, Bad (Dusche, WC), WC, Fitnessgeräten, Parkplatz, Freisitz im Garten, inkl. Endreinigung, Bettwäsche und Handtücher, Badeseen, Radwege, Einkaufsmöglichkeiten, Legoland 20 km.
Seit mehreren Jahren führen wir das Gästehaus Gold als Familienbetrieb. Unsere Gäste schätzen das persönliche Verhältnis, die geräumigen Zimmer
und unseren Freisitz im Garten. Bei uns können Sie und Ihre Kinder Urlaub machen wie es Ihnen beliebt. Gerne vermieten wir auch an Monteure.
Unsere Wohnungen
Unser Gästehaus ist vor allem für Familien mit Kindern die ideale Lösung. In beiden Ferienwohnungen mit jeweils 80 Quadratmetern finden Sie ein Wohn- und Esszimmer, eine geräumige Küche, ein Bad mit Dusche und Schlafzimmer mit insgesamt 8 bzw. 5 Betten plus Kinderbett. Platz genug also, um sich ganz wie zu Hause zu fühlen.
Eine kontrollierte Wohnraumbelüftung sorgt für gutes Raumklima. Auf der gemütlichen Veranda können Sie ungestört die lauen Sommernächte genießen und grillen – eben richtig erholen. Ein Abstellraum bietet Platz für Fahrräder, Surfbretter und all die Dinge, die Sie für einen aktiven Urlaub brauchen. Auf dem Stellplatz steht Ihr Auto sicher und geschützt.
Einkaufsmöglichkeiten im Ort und in der näheren Umgebung. Badeseen, Radwege, Sport- und Spielplatz sind schnell zu erreichen.
Unser Garten
In unserem Garten können Sie sich wie zu Hause fühlen. Es gibt eine Liegewiese, eine Teichanlage mit Bachlauf, ein Kneippbecken, einen Sandkasten für Kinder, mehrere Sitzplätze mit Grillbenutzung und einen Fahrradschuppen.
Konditionen
Eine Anzahlung in Höhe von 20% kann berechnet werden.
Stornierungen bis 14 Tage vor Anreise sind kostenfrei, Stornierungen zwischen 14-7 Tagen vor der Anreise werden mit 50% der Gesamtkosten berechnet, Stornierungen in den 7 Tagen vor der Anreise werden mit 100% der Gesamtkosten berechnet.
Seit mehreren Jahren führen wir das Gästehaus Gold als Familienbetrieb. Unsere Gäste schätzen das persönliche Verhältnis, die geräumigen Zimmer
und unseren Freisitz im Garten. Bei uns können Sie und Ihre Kinder Urlaub machen wie es Ihnen beliebt. Gerne vermieten wir auch an Monteure.
Unsere Wohnungen
Unser Gästehaus ist vor allem für Familien mit Kindern die ideale Lösung. In beiden Ferienwohnungen mit jeweils 80 Quadratmetern finden Sie ein Wohn- und Esszimmer, eine geräumige Küche, ein Bad mit Dusche und Schlafzimmer mit insgesamt 8 bzw. 5 Betten plus Kinderbett. Platz genug also, um sich ganz wie zu Hause zu fühlen.
Eine kontrollierte Wohnraumbelüftung sorgt für gutes Raumklima. Auf der gemütlichen Veranda können Sie ungestört die lauen Sommernächte genießen und grillen – eben richtig erholen. Ein Abstellraum bietet Platz für Fahrräder, Surfbretter und all die Dinge, die Sie für einen aktiven Urlaub brauchen. Auf dem Stellplatz steht Ihr Auto sicher und geschützt.
Einkaufsmöglichkeiten im Ort und in der näheren Umgebung. Badeseen, Radwege, Sport- und Spielplatz sind schnell zu erreichen.
Unser Garten
In unserem Garten können Sie sich wie zu Hause fühlen. Es gibt eine Liegewiese, eine Teichanlage mit Bachlauf, ein Kneippbecken, einen Sandkasten für Kinder, mehrere Sitzplätze mit Grillbenutzung und einen Fahrradschuppen.
Konditionen
Eine Anzahlung in Höhe von 20% kann berechnet werden.
Stornierungen bis 14 Tage vor Anreise sind kostenfrei, Stornierungen zwischen 14-7 Tagen vor der Anreise werden mit 50% der Gesamtkosten berechnet, Stornierungen in den 7 Tagen vor der Anreise werden mit 100% der Gesamtkosten berechnet.
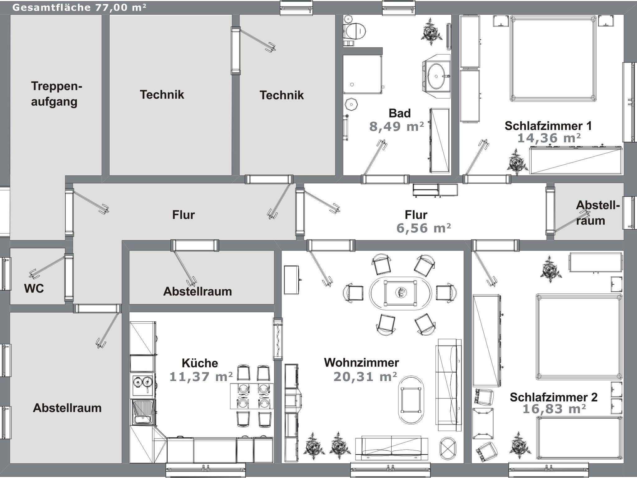
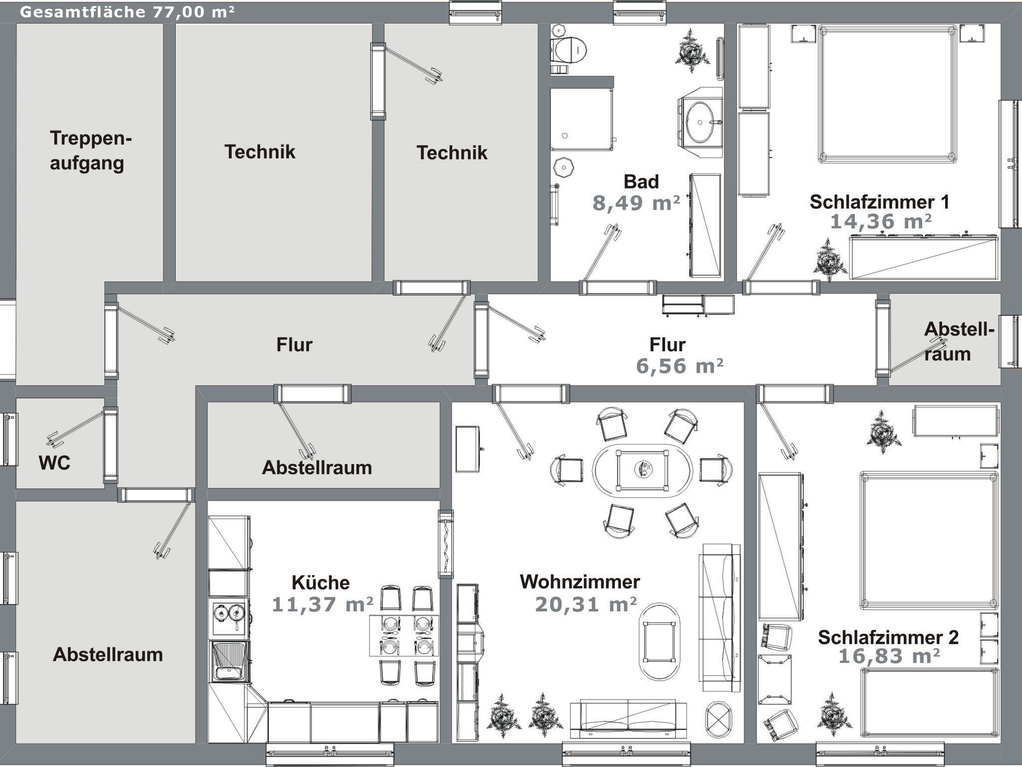
Ferienwohnung mit ca. 77 m2, Wohnraumbelüftung mit Wärmerückgewinnung, Küche, Wohn-Esszimmer, 2 Schlafzimmer, Bad mit Dusche. Die Küche ist mit folgenden Küchengeräten ausgestattet: Backofen mit Cerankochfeld, Mikrowelle, Kühlschrank mit Gefrierfach, Geschirrspüler, Kaffeemaschine, Toaster, Brotschneidemaschine, Wasserkocher, Eierkocher, sämtliches Geschirr und Besteck, Töpfe und Pfannen. Im Wohn-Esszimmer befinden sich zwei Ledersofas und Wohnzimmertisch, WLAN, SAT-TV, CD-Radio, Esszimmertisch mit 8 Stühlen. In der Ferienwohnung befinden sich zwei Schlafzimmer: 1 Zimmer mit einem Doppelbett u. einem Bett, 1 Zimmer mit einem Doppelbett, Betten mit Federkernmatratze, Nachttisch mit Leselampe, Kleiderschrank in jedem Zimmer.
Konditionen
Anreise von 15.00 bis 22.00 Uhr. Abreise bis 10.00 Uhr.
Aus Rücksichtnahme allen Mietern gegenüber müssen Haustiere leider draußen bleiben.
Konditionen
Anreise von 15.00 bis 22.00 Uhr. Abreise bis 10.00 Uhr.
Aus Rücksichtnahme allen Mietern gegenüber müssen Haustiere leider draußen bleiben.
Ausstattung
-
Kinder einrichtungen
-
Familienfreundlich
-
-
Serviceeinrichtungen
-
Auf dem Boden
-
Backofen
-
Bettwäsche
-
Bügelbrett
-
Doppelbett
-
Dusche/WC
-
DVD Spieler
-
Einzelbett
-
Handtücher
-
Haartrockner
-
Kaffeemaschine
-
Kühlschrank
-
Mikrowelle
-
Nichtraucher
-
Radio
-
Reise-/Kinderbett
-
Safe
-
Separate Küche
-
Spülmaschine
-
Terrasse
-
WC-Toilette
-
-
Umliegende einrichtungen
-
Fahrradunterstellmöglichkeit
-
Parkplatz
-
-
Unterkünfte
-
Fitnessraum
-
Internet im öff. Bereich
-
Kurzurlaub
Es besteht eine begrenzte Möglichkeit das ganze Jahr einen Kurzurlaub zu machen, typischerweise ausserhalb der Hochsaison.
Preise und Kalender
Kalender
Ankunft
-
April 2026
Mo Di Mi Do Fr Sa So 14 1 2 3 4 5 15 6 7 8 9 10 11 12 16 13 14 15 16 17 18 19 17 20 21 22 23 24 25 26 18 27 28 29 30 19 -
Mai 2026
Mo Di Mi Do Fr Sa So 18 1 2 3 19 4 5 6 7 8 9 10 20 11 12 13 14 15 16 17 21 18 19 20 21 22 23 24 22 25 26 27 28 29 30 31 23
Verfügbarkeit am ausgewählten Datum prüfen
Frei
Nicht frei
Ankunft möglich
Dauer
Personen
Preis
Zeitraum
- Ankunft
- Abreise
- Dauer
- 1 Woche
Personen
Keine Personen ausgewählt
Bitte beachten
Ankunftszeit wurde nicht ausgewählt.
Es wurden keine Personen ausgewählt.