Komfortables Reihenhaus mit Fjordblick in Hvide Sande

Stadthaus / Reihenhaus - 4 Personen - Slusen - 6960 - Hvide Sande

4 Personen
Objekt Nr.: 039-719
Attraktives Reihenhaus in Hvide Sande mit Blick auf den Ringkøbing Fjord und Wellnessbereich.
  • Schlafzimmer 2
  • Badezimmer 2
  • Wohnfläche 116 m²
  • Grundstück 120 m²
  • Haustiere Nicht erlaubt
  • Kurzurlaub möglich Nein
  • Entfernung Wasser 50 m
  • Einkaufen 600 m
  • Whirlpool Ja
  • Sauna Ja
  • Highspeed Internet Ja
  • Satelliten-/Kabel TV Ja
  • Kaminofen Ja
  • Gute Angelmöglichkeiten Ja
  • Wasserblick Ja
  • Waschmaschine Ja
  • Trockner Ja
  • Geschirrspüler Ja
  • Nichtraucher Ja

Beschreibung

Wenn Sie Ihren Urlaub in Hvide Sande gern nah am Ortskern und nah an reizvoller Natur verbringen möchten, dann sollten Sie sich dieses Urlaubsdomizil unbedingt ein wenig genauer anschauen. Das große, attraktiv eingerichtete Reihenhaus befindet sich ganz nah an Schleuse und Zentrum. Im Wohnraum und in einem der Schlafzimmer genießen Sie einen schönen Blick über den Ringkøbing Fjord.

Einrichtung
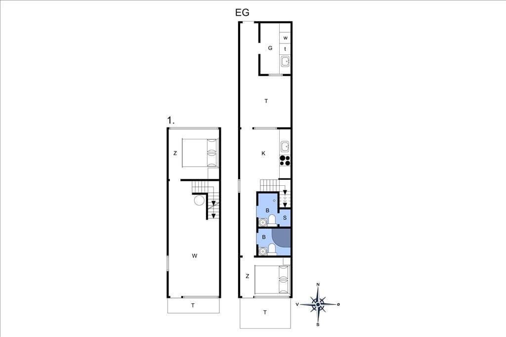
Das 116 m² große Qualitätshaus empfängt Sie mit einer ansprechenden Einrichtung und einer angenehmen Wohnatmosphäre. Die Raumaufteilung eignet sich perfekt für vier Urlauber, die sich auf zwei Schlafzimmer verteilen. Eines der Schlafzimmer befindet sich im Erdgeschoss und besticht mit bodentiefen Fenstern auf der Fjordseite. Der Rest des Erdgeschosses ist der guten Küche samt Essplatz und zwei guten Badezimmern gewidmet. Eines der Bäder verwöhnt mit einer Sauna, das andere begeistert mit einem Whirlpool. Über die Treppe gelangen Sie in das Obergeschoss, wo Sie ein schöner Wohnraum mit einem Kaminofen, einer komfortablen Polstergarnitur und einem Flachbild-TV erwartet. Das große Giebelfenster gewährleistet nicht nur einen schönen Tageslichteinfall von Süden, sondern eröffnet Ihnen zugleich einen wunderbaren Ausblick auf den Fjord. In diesem Raum werden Sie sich häufig und gern entspannen. Im Nebengebäude ist ein praktischer Hauswirtschaftsraum untergebracht, der eine Waschmaschine, einen Wäschetrockner, eine Gefriermöglichkeit und einen Fischreinigungsplatz beinhaltet.

Außenbereich
Vom Schlafraum im Erdgeschoss genießen Sie direkten Zugang zur sonnenverwöhnten Südterrasse, die einen teilweisen Blick auf das Wasser bietet. Ausgesprochen beeindruckend präsentiert sich der Fjordblick auf dem Balkon im Obergeschoss. Von hier aus lassen Sie Ihren Blick über das glitzernde Wasser, die Küstenlinie und die große Schleuse wandern. Für gänzlich ungestörte Momente ziehen Sie sich auf den komplett geschlossenen Innenhof zurück, der an der Nordseite des Hauses liegt.

Lage
Die attraktive Lage mitten in Hvide Sande garantiert, dass Sie schöne und abwechslungsreiche Urlaubstage genießen. Binnen kurzer Zeit erreichen Sie zu Fuß die guten Restaurants, interessanten Geschäfte und anderen Angebote im Ortskern. In bequemer Reichweite liegen die schönen Nordseebadestrände, die guten Surfspots und der Westwind Nord Kabelpark, bei dem Sie sich auf Wasserskiern oder dem Wakeboard versuchen können. Für Angler könnte die Lage des Ferienhauses nicht besser sein. Wenige Schritte trennen Sie von den sehr guten Angelplätzen im Hafen und an der beliebten Schleuse. Hinzu gesellen sich gute Angelmöglichkeiten in Fjord, Nordsee und mehreren Put & Take-Angelteichen.

GRATIS! Kostenloser Verleih von Kinderreisebetten und Hochstühlen. Mieter eines Hauses, in das ein Hund mitgebracht werden darf, können ein Hundebett ausleihen. Die Abholung und Rückgabe erfolgt bei .

Lademöglichkeit für E-Autos: Schauen Sie bitte unter "Ausstattung" nach, ob bei diesem Mietobjekt eine Lademöglichkeit für E-Autos vorhanden ist.

Unsere Gästebewertungen Externe Bewertungen

4,5
Bezogen auf 2 Bewertungen
Letzte Bewertung ist vom 20.07.2025
5
(1)
4
(1)
3
(0)
2
(0)
1
(0)
Kommentare
Keine Bewertungen haben Kommentare.

Ausstattung

  • Hausinfo.

    • 2 x WC
    • Anzahl Erw.
      4
    • Anzahl Etagen
      2
    • Baujahr
      2004
    • Dusche
    • Fördeblick
    • Grundstück / Naturgrund
      120 m²
    • Hausareal
      116 m²
    • Panorama
    • Sauna
    • Whirlpool, drinnen
  • Entfernungen

    • Entfernung Einkauf / Ganzjahresgeschäft
      600 m
    • Entfernung Fjord
      50 m
    • Entfernung Küste
      50 m
    • Entfernung Restaurant
      300 m
    • Entfernung Schwimmhalle
      200 m
    • Entfernung Strand / Sand-, Kieselstrand
      1,1 km
    • Entfernung zum Golfplatz
      14 km
  • Energie/Heizung

    • Fernheizung
    • Kaminofen
  • Küchengeräte

    • Abzugshaube
    • Bügelbrett
    • Bügeleisen
    • Gefriertruhe
      150
    • Herd
    • Kaffeemaschine
    • Kühlschrank m/Gefrierfach
    • Mikrowelle
    • Spülmaschine
    • Waschmaschine
    • Wasserkocher
    • Wäschetrockner
  • Multimedien

    • 2 x deutsches Fernsehen
    • 2 x dänisches Fernsehen
    • 2 x Fernseher
    • Kabel TV
    • Kostenloses WLAN - mehr als 100 Mbit
    • Norw. TV
    • Schwedisches TV
  • Extra

    • Anglerhaus
    • Gute Angelmöglichkeiten
    • Hochstuhl
  • Draußen

    • Balkon
      2 m²
    • Fischputzplatz, draussen
    • Gartenmöbel
    • Grill
    • Liegestühle
      2
    • Offene Terrasse
      25 m²
    • Parken auf dem Grundstück
  • Diverse

    • 2 x Fußbodenheizung
    • 2 x Holz-/Parkettboden
    • 3 x Fliesenboden
    • Doppelbett 180 x 200 cm.
    • Doppelbett, Höhenverstellbares Bett 180 x 200 cm.
  • Regeln

    • Aufladung von Elektroautos nicht erlaubt
    • HAUSTIER NICHT ERLAUBT
    • Rauchen verboten
  • Preis inbegriffen

    • Endreinigung inkl.
  • ALT

    • 2 x Vinyl-/Linoleum-/Laminat-/Korkboden
    • Energiesparhaus

Preise und Kalender

Kalender

Ankunft
Vorheriger Monat Nächster Monat
  • März 2026
    MoDiMiDoFrSaSo
    91
    102345678
    119101112131415
    1216171819202122
    1323242526272829
    143031
  • April 2026
    MoDiMiDoFrSaSo
    1412345
    156789101112
    1613141516171819
    1720212223242526
    1827282930
    19
   Verfügbarkeit am ausgewählten Datum prüfen
Frei
Nicht frei
   Ankunft möglich
Dauer
Personen

Preis

Zeitraum
Ankunft
Abreise
Dauer
1 Woche
Personen
Keine Personen ausgewählt

Bitte beachten

Ankunftszeit wurde nicht ausgewählt.
Es wurden keine Personen ausgewählt.
Vertrags- und Mietbedingungen